ACR230ELH电力质量分析仪的设计和应用
徐希华 中国联合工程公司上海分公司 上海 200011
汤建军 左凌俊 裴善勇 安科瑞电气股份有限公司 上海 201801
摘要:本文介绍了ACR230ELH电力质量分析仪的设计原理以及该产品在2010年上海世博会中心场馆配电系统中的实际应用。
关键字:电力质量分析仪;谐波;世博会;ARM;DSP
随着电力电子技术的蓬勃发展,供电系统中增加了大量的非线性负荷,从低压小容量的家用电器到大容量的工业交流变换器的广泛应用,引起了电网电压、电流波形的畸变,威胁到电力系统安全、稳定、经济运行。在国家一些重要项目的建设中电网质量的监测显得尤为重要,作为目前功能完整,体积较小的96型ACR230ELH电力质量分析仪对电力质量检测、解决谐波产生的问题有着重要的指导作用。
应用的先进技术:
为了对上述电网谐波危害进行相应的度量、评估和考核,上海安科瑞电气股份有限公司研发了基于DSP+ARM7模块化设计方案的高端电力质量分析产品ACR230ELH。
该产品采用当今世界流行的高档电能标设计方案:DSP+MCU的实现方法,将DSP的高速数字信号处理功能和高档MCU(ARM)完善的管理、通讯、丰富的接口功能相结合。基本工作原理如下:

图1硬件设计原理框图
互感器将来自电网的电压、电流信号实时送到表内16位高速Sigma-DelTa AD进行6个通道电力信号的同步采样,AD转换完成之后把数据传送给DSP进行各种复杂的数值运算,通过相应的数学运算,DSP完成整表的计算功能,具体包括所有电力参数的测量、有功、无功、视在电能的计量等工作;完成之后DSP把相应的计算数据和ARM7进行数据交换,ARM7主要完成液晶显示、数据统计存储、外部通讯、菜单键盘操作、DI/DO量的输入控制等工作。
A/D采用的是ADI公司推出的AD73360L芯片,内带6个独立通道的16位串行模数转换器,采用Sigma-Delta转换原理,具有良好的抗混叠性能。AD73360的数据转换输出接口是同步串口(SPORT口),DSP采用的是ADSP 219x芯片,同样具有相同SPORT接口,使用起来非常的方便,免去了IO口模拟带来的一系列烦恼。
ARM7采用的是NXP的LPC2138,该芯片功能强大,外围端口资源丰富,内部RAM最大可以达到32K,运行速度可达60M,带有多通道的32位定时器,多路PWM输出资源,多个SCI、SPI、IIC接口;IO口可以承受5V电压输入;内部还带有多种运行功耗模式。 该表软件分为两部分,其一是DSP的相关程序流程代码,这部分代码按功能上分主要是以下几块:分为AD采样控制、串口数据传输、大量复杂的数值运算(包括傅氏变换)、能量累计、电能质量分析、电能脉冲输出等几个部分;其二是ARM7中的相关程序流程,主要包括:液晶显示、按键处理、数字通讯、开关量输入输出功能的实现以及部分事件记录功能的实现;在编程语言的选择上,DSP部分采用C语言和汇编语言混合编程,为了保证系统良好的实时性,以汇编语言为主,C语言作整个程序框架进程调度,既保证了程序的易读性,也兼顾了系统良好的实时性。ARM7的程序是基于uc/OS-II操作系统平台开发的,程序简单易读,可移植性较好,便于产品的后续升级工作。整个系统的软件大致要完成3个部分的工作:系统的初始化代码、uc/OS-II操作系统移植、应用任务的编写。
算法描述
基于上述的模块化设计理念,充分考虑了数字信号处理器的强大的数值计算功能,让其完成了所有的计算变换等功能;具体包括电压、电流有效值、有功、无功功率、视在功率、功率因数、有功、无功、视在电能的累计、电能质量指标的计算。考虑到常规电参量的计算公式比较常见,这里就不再赘述了,着重把电能质量指标的计算方法描述一下:电能质量方面的计算,具体包括:2-31次谐波分析,电压波峰系数,电话波形因子,电流K系数,三相电压、电流不平衡度,电压、电流正序、负序、零序分析,电压偏差、频率偏差。
电能质量的相关指标如下:
A.谐波(GB/T 14549);
电压的2-31次谐波分析主要是采用DSP的FFT算法来实现,得到的基波分量和谐波分量分别为U1,U2…Uh;各次谐波含有率的计算公式如下:
; ;
电流的2-31次谐波分析与之类似;
图2 电网谐波波形及谐波棒图
B.不平衡度(GB/T 15543)
电压不平衡包括每相信号的幅度和三相之间的角度不平衡,具体计算参照下述公式:
电流不平衡的计算方法和电流一致。
图3 三相不平衡波形
C.频率偏差(GB/T 15945)
频率偏差即系统频率的实际值和标称值之差。电力系统正常频率偏差允许值为±0.2Hz。当系统容量较小时,偏差值可以放宽到±0.5Hz。用户冲击负荷引起的系统频率变动不得超过±0.2Hz,根据冲击负荷性质和大小以及系统的条件也可适当变动限值,但应保证近区电力网、发电机组和用户的安全,稳定运行以及正常供电。
D. 电压偏差(GB/T 12325)
35KV及以上供电电压正,负偏差的绝对值之和不超过额定电压的10%。
10KV及以下三相供电电压允许偏差为额定电压的±7%。220V单相供电电压允许偏差为额定电压的+7%,-10%。
图4 电压变化
此外在电力系统实际运行过程中,还有一些参数会间接的反映出电网波形的实际情形,比如电压波峰系数、电压电话波形因子和电流K系数(前面两个主要是衡量电压波形畸变带来的影响、第三个主要是衡量电流波形畸变带来的变化)。
电压波峰系数的计算如下: 
电话波形因子: 
电流K系数: 
实现功能及性能:
ACR230ELH实现了以下功能:
1、高精度测量常规的三相交流电量,如三相相电压、线电压、电流、有功功率、无功功率、视在功率、功率因数等;
2、专业的四象限电能(包括吸收有功电能、释放有功电能、感性无功电能、容性无功电能)高精度计量;可分8个时段三种费率计量本月、上月、上上月以及总的有功电能;
3、全面的测量电压电流2-31次谐波分量及THD、电流K系数、电压波峰系数、电话波形因子及三相电压电流不平衡度等,用户可以方便的对供电电网质量进行分析;
4、具有4路开关量输入、2路开关量输出、一路485接口Modbus协议的通讯接口,充分满足电力自动化遥控遥测需求。
该产品已经通过CE论证并成功出口到英国和西班牙,详细效果见下图。
图5 出口OEM仪表外观
应用案例
世博中心是上海世博会园区内首座永久性场馆,位于卢浦大桥东侧世博园区B区滨江绿地内,东西长约350米,南北宽约140米,总建筑面积约14万平方米,现已建成并投入试运营。世博中心作为世博永久性场馆中最重要的场馆之一,在世博会期间,将承担世博会运营指挥中心、庆典会议中心、新闻中心、论坛活动中心等功能。
图6 世博中心场馆外观图
安科瑞电气股份有限公司的ACR230ELH在该项目中一举包揽了中心场馆5个变电所的所有电力数显示仪表。以世博中心地下5个变电所中的1#所举例:这是一个0.4kV低压配电站系统,由2个受电柜、2个应急进线柜、1个母联柜、4个补偿柜,155个馈出柜组成。馈出柜负载具体可分为:展览用电、照明用电、空调风机用电、动力用电和消防用电。配电系统中采用了LED等节能光源、大功率变频中央空调、展览用电等大量非线性用电设备,虽然降低了实际的功耗,以实现节能的目标,但是这些设备都是电力系统谐波的主要来源;这些设备即使供给它们理想的正弦波电压,取用的电流也是非线性的,即有谐波电流存在。这些设备产生的谐波电流注入电力系统中,使系统各处电压产生谐波分量。这些设备单个容量不大,但基数很大且散布于各处,电力部门又难以治理。假如这些设备的电流谐波含量过大,则会对世博中心场馆电力系统造成严重影响。
图 7
ACR230ELH多功能电力仪表在现场使用之后,用户除了可以通过该表了解所有常规电参数之外,可以了解世博中心场馆现场各种电力设备投运前、后相关系统的电力质量水平及其变化对有关设备的影响,方便电力质量故障诊断和异常的原因测量,为大型公建的稳定运行提供实时数据。
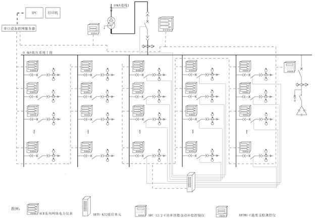
在该项目中主要用到了该产品的以下功能,常规电参数测量、复费率电能计量、电力质量分析、分断开关的分合状态指示以及485通讯组网。现场系统网络结构(如图 10):现场设备层——网络通讯层——站控管理层。也即是:先将现场智能设备接入就地的Modbus总线,再将Modbus总线通过串口设备联网服务器转换成TCP/IP以太网与监控主机进行数据交换,最终由方便管理人员通过监测系统软件了解及掌握现场状况,并进行实时监测。
1、现场设备层采集所需实时监测的电参量:
现场设备层是数据采集终端,主要是由智能仪表组成(此项目中主要为ACR230ELH电力质量分析仪),向数据中心上传存储的参数。世博中心场管项目中,例如主进线回路的三相电流、三相电压、有功/无功功率、功率因数及频率;电容补偿回路的功率因数、有功、无功功率;联络回路的三相电压、电流;普通低压出线回路的三相电流、功率;重要低压出线回路的三相电流、有功、无功功率、电压和电流的2-31次谐波、谐波畸变率(THDi、THDu)等电参量;
2、网络通讯层实现数据传输:
在现场设备(如ACR230ELH)中采集到的电参量,通过以太网实现系统信息的交换和共享,并将数据提供给总变监控系统。同时,转达上位机对现场设备的各种控制命令。
3、站控管理层以最直观方便的形式反映现场各个运行状态:
站控管理层针对监测系统的管理人员,是人机交互的直接窗口,也是系统的最上层部门。监测系统软件具有良好的人机交互界面,对采集的现场各类数据信息计算、分析与处理,以报表及图文方式直观地体现各种电参量信息及系统运行以来的具有参考价值的历史数据,如谐波数据、棒图及曲线,电力能耗的日、月、年报表,日志报表等等。
结束语
安科瑞电气股份有限公司的ACR230ELH可以实时监测馈出负荷的负载特性,监测电力质量参数,对谐波等参数进行实时分析,便于上位机系统实时监控电力系统运行状况、谐波污染程度,给世博运行维护工程师提供可靠真实数据,以便他们及时采取合理的应对措施,为实现绿色环保世博保驾护航。
图8 系统网络拓扑结构
参考文献
1)《电力电测数字仪表原理与应用指南》,任致程,周中,中国电力出版社
2)《电能质量国家标准应用指南》,中国标准出版社
3)《数字信号处理原理及其MatLab实现》,电子工业出版社
4)《工业与民用配电设计手册》,任元会,中国电力出版社
|