Ê×Ò³ - ÐÂÎÅ - ÕÐÆ¸ - ÏÂÔØ - ²úÆ· - ³§ÉÌ - ·½°¸ - ÎÄÕª - Çó¹º - Õ¹ÀÀ
Ãâ·Ñ×¢²á µÇ¼ | ¹ã¸æ·þÎñ | ¿Í·þÖÐÐÄ
Öлª¹¤¿ØÍø ¡ú ¹¤¿Ø²úÆ· ¡ú ¸ßѹÀëÐÄͨ·ç»úÏûÉùÆ÷
²úÆ·Ãû³Æ£º ¸ßѹÀëÐÄͨ·ç»úÏûÉùÆ÷
ÐÍ ºÅ£º
¼Û ¸ñ£º 0.00
Æ· ÅÆ£º
 
Êղش˲úÆ·     ²é¿´ÊÕ²Ø
¸ßѹÀëÐÄͨ·ç»úÏûÉùÆ÷

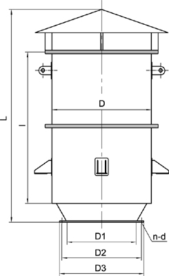
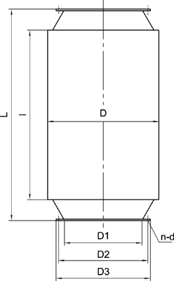
Ò»¡¢½á¹¹ÐÍʽ
¡¡¡¡±¾ÏµÁÐÏûÉùÆ÷ΪһÖÖ×迹¸´ºÏʽÏûÉùÆ÷£¬Æä×èÐԶβÉÓÃÁйÜÎüÉùͨµÀ£¬¿¹ÐԶβÉÓÃÁ˶àÊÒ¿¹ÐÔǻֱ¹ÜͨµÀ¼°Ê®×ÖÐÎÎüÉùƬÐÎʽ£¬´Ó¶ø±£Ö¤ÁËÔÚ½Ï¿íÆµ´ø·¶Î§ÄÚ¾ßÓÐ×ã¹»µÄÏûÉùÁ¿¡£

¶þ¡¢ÊÊÓ÷¶Î§
¡¡¡¡Ö÷ÒªÓÃÓÚ¸÷ÖÖϵÁУ¨8-18ÐÍ¡¢9-27ÐÍ£©µÄ¸ßѹÀëÐÄͨ·ç»ú£¬ÓÃÓÚ½µµÍ½ø¡¢³ö·ç¿ÚµÈ¿ÕÆø¶¯Á¦ÐÔÔëÉù¡£
¡¡¡¡JD-QXÐÍÁ½¶Ë¾ùΪ·¨À¼Áª½Ó¿É´®½ÓÓڹܵÀÖС£
¡¡¡¡JD-QHÐÍÒ»¶ËΪ·ÀÓêñ£¬½ö¹©ÉèÖÃÔÚÊÒÍâ¹ÜµÀÄ©¶ËºÍ·â±Õʽ»ú·¿½ø·ç¿ÚÑ¡Óá£

Èý¡¢¹æ¸ñ¡¢ÐÔÄÜ¡¢ÍâÐγߴç

ÊÊÓÃÁ÷Á¿(m3/h)
ÍâÐγߴçÍâ¾¶D
·¨ À¼ ³ß ´ç(mm)
ÆøÁ÷¶ÈËÙ(m/s)
×èÁ¦Ëðʧ(Pa)
Íâ¾¶D
ÓÐЧ³¤¶È
°²×°³¤¶ÈL
ÄÚ¾¶D1
ÂÝ¿×ÖÐÐÄÔ²Ö±¾¶D2
Íâ¾¶D3
Áª½Ó¿×
QX
QH
¿×¾¶d
¿×Êýn
JD-QX-1 JD-QH-1
2200
450
1300
1550
1650
230
318
350
12
6
13.4
170
JD-QX-2 JD-QH-2
5000
600
1300
1550
1650
340
426
450
14
8
13.5
215
JD-QX-3 JD-QH-3
8000
730
1300
1600
1700
420
506
540
14
12
16
235
JD-QX-4 JD-QH-4
12000
790
1400
1800
1800
500
606
640
14
12
17
260
JD-QX-5 JD-QH-5
15000
900
1540
1890
2020
580
686
720
14
12
17
260
JD-QX-6 JD-QH-6
20000
950
1640
1990
2140
650
806
790
14
12
17
260
JD-QX-7 JD-QH-7
25000
1000
1690
2040
2240
700
816
840
14
12
18
300
JD-QX-8 JD-QH-8
30000
1100
1750
2150
2400
780
886
920
14
16
17.5
280
JD-QX-9 JD-QH-9
35000
1180
1800
2200
2500
840
945
980
14
16
17.6
280
JD-QX-10 JD-QH-10
40000
1330
1880
2250
2600
900
1006
1040
14
24
17.5
280
JD-QX-11 JD-QH-11
50000
1420
1990
2250
2650
1000
1106
1140
14
24
17.7
280
JD-QX-12 JD-QH-12
80000
1780
2900
3200
3600
1300
1420
1480
30
30
16.7
300
 
¡¡¡¡¡¡¡¡¡¡
 


¹«Ë¾¼ò½é
²úƷĿ¼
¹©Ó¦ÐÅÏ¢

¹«Ë¾Ãû³Æ£º Æô¶«ÊÐêÆöλ·±£É豸ÓÐÏÞ¹«Ë¾
µç »°£º 0513 83038997 / ³ÂÎÄÇå
ÊÖ»ú£º 13906283997
µØ Ö·£º Æô¶«Êп­Ðý·338 ÃºÆøÅÅË®Æ÷ ÃºÆøÀäÄýË®ÅÅË®Æ÷ µ¯×Ó·§
ÓÊ ±à£º 226200
Ö÷ Ò³£º http://www.jschxyj.com

¸Ã³§ÉÌÏà¹Ø²úÆ·£º
  • С¹ÜµÀÀäÄýË®ÅÅË®Æ÷
  •  
  • ¸ßѹÑõÆø·ÅÉ¢ÏûÉùÆ÷
  •  
  • ÃºÆøÓõ㷧Ïä
  •  
  • ú·Û¹ýÂËÆ÷
  •  
  • ¸ß¯Àä·ç·Å·ç·§ÏûÉùÆ÷
  •  
  • ÃºÆøÅÅË®Æ÷
  •  
  • ÒÒÈ²ÆøÓõ㷧Ïä
  •  
  • ÇòÃæÆ«ÖÃÊ½Æø¶¯ÖÓ·§
  •  
  • µ¯×Ó·§
  •  
  • ÉÕ½á»úÖ÷Öá·ç»ú³ö¿ÚÏûÉùÆ÷
  •  
    ¸ü¶à²úÆ·...
      ¹ØÓÚÎÒÃÇ | ÁªÏµÎÒÃÇ | ¹ã¸æ·þÎñ | ±¾Õ¾¶¯Ì¬ | ÓÑÇéÁ´½Ó | ·¨ÂÉÉùÃ÷ | ·Ç·¨ºÍ²»Á¼ÐÅÏ¢¾Ù±¨  
    ¹¤¿ØÍø¿Í·þÈÈÏߣº0755-86369299
    °æÈ¨ËùÓÐ ¹¤¿ØÍø Copyright@ Gkong.com, All Rights Reserved